佳裝網 Copyright ? 2023 www.jswlyb.com 佳裝網 版權所有
佳裝網是一家致力于為業(yè)主推薦高標準高質量的裝修公司的服務平臺。挑選優(yōu)質的新房裝修設計、舊房翻新、別墅大宅設計案例的裝修裝飾平臺。
工作時間:周一至周日 8:30 - 22:00

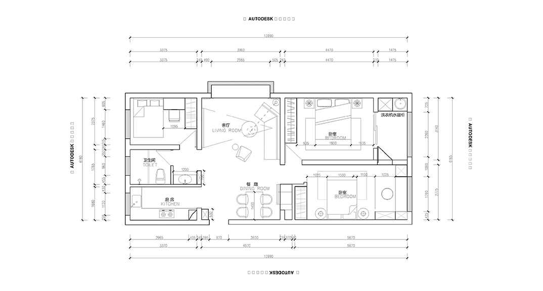
巴黎名城115㎡三室兩廳戶型圖

巴黎名城115㎡三室兩廳現代簡約風格裝修案例效果圖

巴黎名城115㎡三室兩廳臥室現代簡約風格裝修案例效果圖

巴黎名城115㎡三室兩廳次臥現代簡約風格裝修案例效果圖